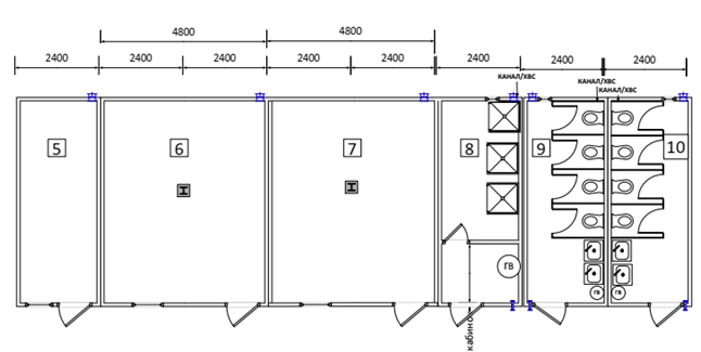
Модульное здание из 2 БК 6000*4800*2600- 5 шт.
Блок контейнер 6 000*2 400* 2 600 мм- 5 шт.
- Каркас - Швеллер 100*50*3, Уголок г/к 70*70*5
Усиление полов металлическим швеллером 100 мм – 1 шт. в каждом Опорные колонны из проф.трубы в помещ.из 2 БК
Усиление стен проф.трубой (при необходимости)
- Кровля - сварная из металл.листа, толщ.0,8мм, загрунтована
- Потолок - ЛДСП в бытовых помещениях, СМЛ во
влажных (душ, СУ), Утепление - мин.вата, в плитах, толщ.100 мм НГ «Vetonit»( Isover) «Каркас П-37»
- Пол - Линолеум п/коммерч. ПВХ плинтус
Утепление - мин.вата, в плитах, толщ.100 мм НГ
«Vetonit»( Isover) «Каркас П-37» -
Стены
1. ЛДСП панель, цвет «Дуб атлант», крепление через омега профиль.
2. СМЛ панель, цвет «светлосерый», крепление через омега профиль. (душ, СУ)
-
Входные двери - Дверь металлическая 2050*860 мм, с доводчиком – 10 шт.
-
Перегородки - Деревянный каркас 40*100
Утепление: мин.вата, в плитах, толщ.100 мм НГ «Vetonit»( Isover)
«Каркас П-37»
Пароизоляция с 2-х сторон: CHESKO B -
Межкомнатные двери - МДФ «Олови» 2000*700 мм – 1 шт.
ПВХ Глухая 2000*700 мм в помещ.душевой – 1 шт.









