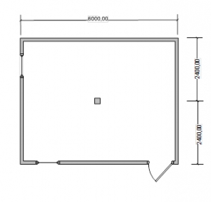
Модульное здание 6000*4800*2450мм:
- снаружи оцинкованный профлист 0,4мм,
- декоративные стыковые наружные вертикальные элементы RAL 5005 синий – 2 шт., внутренние RAL 9003 белый – 4 шт.,
- утепление 50мм (стены-плита), пароизоляция ПВХ,
- стены и потолок – оргалит, пол – OSB 15мм, плинтус ПВХ,
- дверь ДВП, снаружи обита оцинкованным листом – 1 шт.,
- ПВХ стеклопакет однокамерный 840*1040мм поворотно/откидной – 2 шт.










