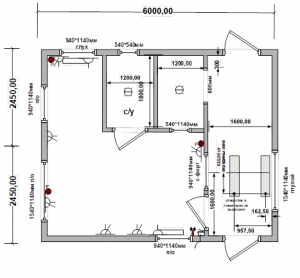
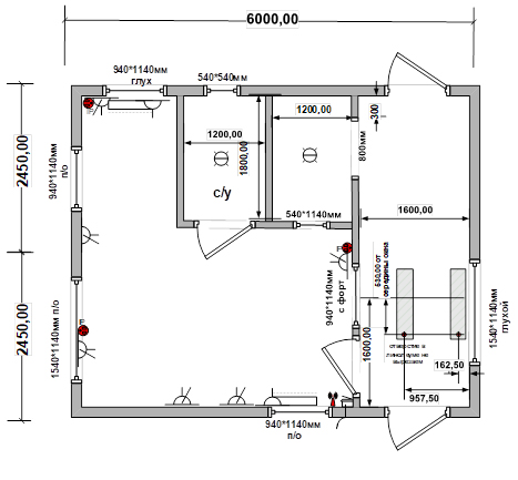
Модульное здание, размеры 6000*4900*2800мм:
- кровля с уклоном 100мм, сварной лист 1,0мм, наплавляемая кровля 2 слоя (Унифлекс ХПП + Унифлекс ХКП сланец), снаружи профлист С8 0,45мм RAL 7024 темно-серый, декоративные стыковые элементы: наружные RAL 7024 темно-серый: угловые, цокольные, подкровельные, вертикальные, внутренние RAL 9003 белый,
- утепление наружных стен, пола, потолка: базальтовая плита UMATEX SMART XL 50мм с улицы, экструдированный пенополистирол 50мм, стеклоткань НГ внутри, утепление перегородок: базальтовая плита UMATEX SMART XL 100мм,
- внутренняя отделка стен: панели МДФ ясень перламутровый, в с/у – панели ПВХ белого цвета, в проходной зоне и комнате посетителей панели ПВХ цвет ясень белый,
- внутренняя отделка потолка: ПВХ панели белого цвета,
- пол – оцинкованный лист на дне, плита ЦСП 16мм, коммерческий линолеум гомогенный на клей FORBO 522, все швы сварены, плинтус ПВХ серого цвета,
- металлическая утепленная дверь 960*2050мм RAL 7024 темно-серый, с доводчиком – 2 шт., ПВХ дверь белого цвета – 2 шт.,
- ПВХ стеклопакет двухкамерный: 1540*1140мм 1 створка глухая, 1 створка поворотная – 1 шт., 1540*1140мм глухой – 1 шт., 940*1140мм 1 створка глухая, 1 створка поворотная – 2 шт., 940*1140мм глухой – 1 шт., 540*540мм 1 створка поворотная – 1 шт., в перегородке однокамерный: 940*1140мм 1 створка глухая, 1 створка поворотная – 1 шт., 540*1140мм 1 створка поворотная – 1 шт.,
- электрическое оснащение в кабель-канале, интернет-розетки – 3 шт.,
- настенные конвекторы,
- сантехника,
- крыльцо 1,0*1,0м с 1 ступенькой, лист просечной, с окраской в RAL 7024 темно-серый, с двускатным козырьком 0,8*1,2м – 2 шт.














